Tipo Cucina
Angolo Cottura
Tipo Riscaldam.
Pompa di Calore
Fonte Energetica
Fotovoltaico
Pavim. Giorno
Gres Porcellanato
Pavim. Cucina
Gres Porcellanato
Pavim. Bagno
Gres Porcellanato
Accesso Disabili
Nessuna Barriera
Accessori
Ascensore, Cancello Elettrico, Impianto Fotovoltaico, Impianto Satellitare, Passaggio Pedonale, Porta Blindata, Tapparelle Elettriche, Video Citofono
Presentiamo un nuovo complesso residenziale di prossima realizzazione, situato in posizione centrale e strategica, perfetta per chi desidera vivere a pochi passi da tutti i servizi e le comodità del centro cittadino.
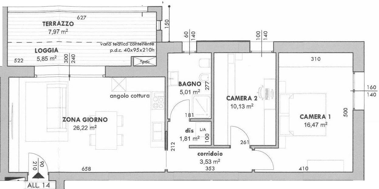
Al terzo ed ultimo piano ascensorato, appartamento 2 camere , composto da soggiorno pranzo, bellissima terrazza abitabile di quasi 14 mq, disimpegno, 2 ampie camere, antibagno con attacchi per lavatrice, bagno, garage e posto auto.
Gli appartamenti, sono tutti progettati con un occhio attento alla sostenibilità, vantano una classe energetica elevata, garantendo comfort e risparmio energetico.
La tecnologia costruttiva all'avanguardia assicura non solo un design moderno e accattivante, ma anche la massima sicurezza e durabilità.
Ogni appartamento è dotato di riscaldamento a pavimento con impianto autonomo in pompa di calore, 3kw di fotovoltaico, tapparelle motorizzate, predisposizione dell’impianto di condizionamento, di allarme e di automazione del basculante.
Ogni unità è realizzata con un capitolato di alta qualità, che include finiture eleganti e materiali selezionati, per offrire un ambiente accogliente e raffinato.
Questi sono immobili dove innovazione e comfort si incontrano!
Rif. A995-14V